Erste Anlaufstelle in Sachen Haar-Styling

Der Eingangsbereich

Unserere Mitarbeiter sind TOP

Mit unserem Salon stehen wir sowohl für ein breites Angebot an klassischen und top-aktuellen Haarschnitten als auch für den freundlichen Service unseres Friseurteams. Setzen Sie auf Kompetenz: Wir beraten Sie gerne in allen Fragen rund um Ihr Haar. Unsere Meister-/innen und Gesellen haben langjährige Erfahrung und erfüllen Ihnen alle Ihre Wünsche

 

Magic Mirror bei WellnessHair

Während des Schneidens oder Wartens haben Sie die Möglichkeit TV oder ein Movie aus unserem Multimediasystem anzusehen. Hierzu bieten wir Ihen Designspiegel mit integrierten LCD Display an. Selbstverständlich stören Sie sich nicht gegenseitig da ein Wireless Headset hier einen optimalen Stereoklang bietet. Sie warten auf die Tönung..aber Langweile beim Friseur ist für immer passe...

 

Die Außenterrasse wird aktiv benutzt

Die angeschlossene Außenterrasse bietet Ihnen die Möglichkeit, sich bei schönem Wetter die Haare in einem angenehmen Ambiente und Pflanzenumgebung schneiden und pflegen zu lassen


3 Klimazonen

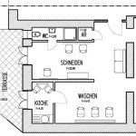
Der Eingangsbereich mit 6 Schneideplätzen ist voll klimatisiert und bietet, zusammen mit Wasserwänden aus frei fallendem Wasser, speziell für ältere Herrschaften ein angenehmes Raumklima auch an heißen Tagen. Der zweite Bereich mit 3 Waschplätzen und 3 weiteren Schneideplätzen bietet das natürliche angenehme Klima eines Sandstein - Jugendstil Hauses. Der dritte Bereich auf der Terrasse ist in der Freiluftsaison nutzbar.

 

Bildergalerie: ein Blick in unseren grünen Salon